Портфолио
Новости
Контакты
2016 © Все права защищены.
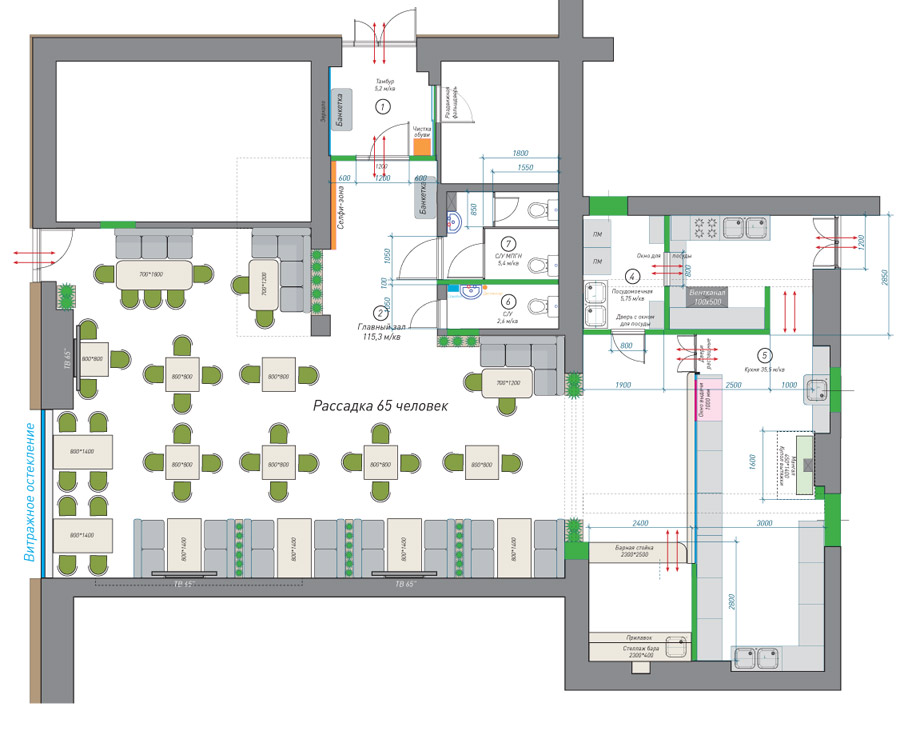
Ресторан Шашлык-Сити
Главная
Портфолио
Интерьер
Компания:
Шащлык-сити
Опубликовано:
21.02.2022
Сделали:
Павел Палей
Интерьер Ресторана Шашлык-сити. Санкт-Петербург, ул. Дыбенко 13
Общий вид зала
Фотография готового интерьера